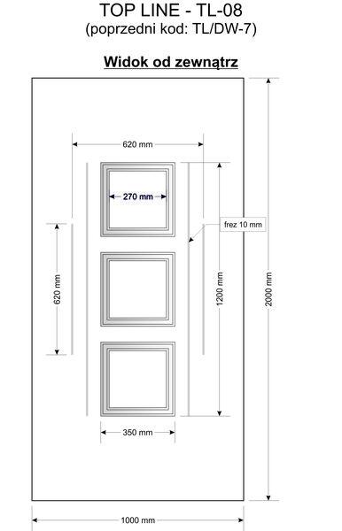
TeilenTweetDruckenPDF Moderner Stil Aluminiumfüllungen Top line 1000x2000x24/36/44/48 mm Cała paleta kolorów RAL. Możliwy wybór producenta lakieru. Karta produktu TL/DW7